À Hendaye, chaque projet de décoration intérieure et d’architecture d’intérieur raconte une histoire unique. Cet appartement de 100 m², situé dans une résidence des années 50 avec une vue imprenable sur Hondarribia, méritait bien plus qu’un simple rafraîchissement. Les volumes existaient, la lumière naturelle baignait déjà les pièces, mais l’ensemble manquait de cohérence, de caractère et de confort technique.
Ce projet de rénovation d’appartement à Hendaye s’est construit autour d’une intention forte : affirmer la couleur, optimiser la distribution, moderniser les réseaux et créer un intérieur audacieux, vibrant et parfaitement fonctionnel.
Un projet d’architecture d’intérieur à Hendaye pensé sur mesure
Un projet sur mesure commence toujours par une écoute attentive. J’analyse les attentes, je décrypte les usages, j’identifie les contraintes techniques et je transforme ces éléments en lignes directrices claires.
Dès les premiers échanges, le cahier des charges s’est imposé naturellement :
- Créer un univers coloré, assumé et parfois décalé dans l’ensemble de l’appartement (3 chambres, salon, cuisine, sanitaires, entrée et couloir).
- Revoir entièrement la distribution des réseaux hydrauliques et électriques situés en partie haute du couloir, de l’entrée, de la salle de bain et de la cuisine.
- Améliorer l’isolation thermique.
- Repenser l’espace de vie, notamment le salon.
- Transformer l’entrée et optimiser la cuisine attenante.
- Moderniser la salle de bain et les toilettes.
Ici, pas de blanc dominant, pas de pastel timide. La couleur guide le projet. Elle structure les volumes, dynamise les perspectives et affirme l’identité du lieu.
Ma mission en architecture d’intérieur : de la conception au suivi de chantier
Dans le cadre de cette rénovation d’appartement à Hendaye, j’ai assuré une mission complète :
Conception et études
- Élaboration du cahier des charges avec les clients
- Plans techniques détaillés
- Plans d’état existant et état projeté
- Planches matériaux et planches d’ambiance
- Conception de mobilier sur mesure
- Vues 3D pour visualiser les volumes et les couleurs
- Liste d’achats et sélection précise des références
Coordination et gestion
- Rendez-vous avec les artisans pour établir les devis
- Maîtrise et optimisation du budget
- Organisation du planning d’intervention
- Coordination des corps de métier
- Comptes rendus réguliers d’avancement
- Interface directe entre clients, artisans et fournisseurs
Réception du chantier
- Vérification des finitions
- Procès-verbal de réception des travaux
- Remise des clés
En architecture d’intérieur, la cohérence dépend autant de la créativité que de la rigueur technique.
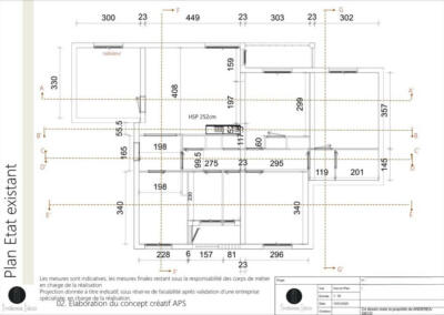
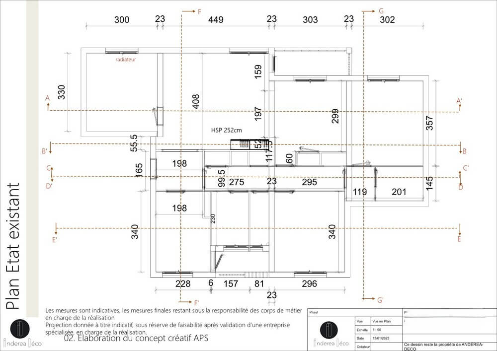
Plan général : comprendre la distribution pour mieux réinventer l’espace
Avant toute transformation, j’analyse la distribution existante. L’appartement présentait une organisation classique des années 50 : un couloir central desservant les pièces, des réseaux techniques apparents, une entrée peu fonctionnelle.
Grâce aux plans d’état existant et projeté, j’ai pu :
- fluidifier les circulations
- intégrer les contraintes techniques dans la conception
- optimiser chaque mètre carré
- valoriser la lumière naturelle
Cette phase d’analyse constitue la base d’une rénovation réussie.
L’entrée et le couloir : transformer un espace technique en signature décorative
À l’origine, l’entrée manquait de fonctionnalité. Aucun rangement, un couloir chargé visuellement par une tuyauterie apparente reliant la chaudière au centre de l’appartement. Le plafond semblait abaissé, l’espace paraissait contraint.
La problématique principale restait claire : ces réseaux visibles structuraient négativement l’espace.
J’ai donc pris des décisions fortes :
- Dissimuler les tuyaux sous le nouveau parquet afin de libérer la hauteur sous plafond
- Créer des rangements dès l’entrée
- Réorganiser le placard du couloir
- Intégrer la chaudière derrière des portes en claustra assurant ventilation et esthétisme
Ensuite, j’ai donné une identité à ces lieux souvent négligés :
- Couleurs affirmées
- Papier peint graphique
- Plafond peint pour structurer visuellement le volume
- Éclairage étudié avec précision pour créer une ambiance chaleureuse
L’entrée constitue la première impression. Le couloir ne reste pas un simple passage : il devient un espace à part entière.
Le salon : un espace de vie structuré par la couleur et la lumière
Le salon représente le cœur de cet appartement à Hendaye. J’ai choisi un papier peint de caractère pour donner du rythme et de la profondeur à l’espace.
Un meuble sur mesure, que j’ai entièrement dessiné, s’inscrit dans la continuité visuelle de l’entrée. Il offre des rangements fonctionnels tout en affirmant la ligne décorative.
Le travail sur la lumière joue un rôle central. Les luminaires soigneusement sélectionnés révèlent les volumes et accompagnent les usages du quotidien. Chaque point lumineux participe à l’équilibre général : éclairage d’ambiance, lumière fonctionnelle, mise en valeur des matières.
La rénovation transforme ainsi le salon en un espace structuré, chaleureux et cohérent avec l’univers coloré du projet.
-
Espace de vie avant rénovation Hendaye
-
papier peint Casamance
-
Espace de vie après rénovation Hendaye
La cuisine : optimisation spatiale et impact visuel
Concevoir une cuisine dans une pièce étroite, fortement contrainte techniquement, exige précision et créativité. Dans cet appartement à Hendaye, l’enjeu consistait à optimiser chaque centimètre tout en créant un effet visuel fort dès l’entrée.
J’ai retenu un plan en parallèle. Cette implantation offre :
- Une circulation fluide
- Un linéaire de rangement maximisé
- Une ergonomie confortable
- Une lecture claire des volumes
J’ai intégré les contraintes techniques dès la phase de conception afin de les transformer en atouts plutôt qu’en obstacles.
Le choix des façades colorées structure la perspective. Le contraste avec le plan de travail effet marbre apporte profondeur et luminosité. La continuité du veinage entre le plan et la crédence renforce l’impression d’agrandissement et crée une unité visuelle forte.
Cette cuisine illustre une conviction fondamentale en architecture d’intérieur : la contrainte stimule la créativité.
Salle de bain et toilettes : modernité et signature chromatique
La salle de bain d’origine manquait de fonctionnalité et d’identité. J’ai redéfini entièrement l’espace autour de quatre objectifs :
- Optimiser les rangements
- Moderniser les équipements
- Dissimuler les réseaux existants
- Créer une signature visuelle forte
Le chantier s’est organisé en plusieurs étapes :
- Passage des gaines en faux plafond et au sol
- Création de coffrages et niches renforcées
- Mise en œuvre de l’étanchéité
- Pose du receveur de douche et du carrelage
- Installation des sanitaires
Le travail chromatique autour des verts et des jaunes crée une atmosphère dynamique, cohérente avec le nouveau sol. La salle de bain devient un espace affirmé, lumineux et parfaitement fonctionnel.
Les chambres : des univers distincts mais cohérents
Chaque chambre possède sa propre identité tout en respectant l’harmonie générale de l’appartement.
- La chambre parentale s’inspire d’un lever de soleil avec un papier peint enveloppant.
- Une seconde chambre adopte un motif plus affirmé, coloré et dynamique.
- Le futur bureau intègre un papier peint évoquant les oiseaux et rappelle subtilement la grande plage d’Hendaye.
Chaque pièce bénéficie d’un luminaire coordonné à son ambiance. Les suspensions deviennent des éléments décoratifs à part entière.
Une rénovation d’appartement à Hendaye portée par la coordination des artisans
La réussite d’un projet de rénovation repose sur une coordination précise des différents corps de métier :
- Plombier
- Électricien
- Plaquiste
- Menuisier
- Agenceur
- Carreleur
- Cuisiniste
- Peintre
Je planifie les interventions, j’anticipe les contraintes, je contrôle les finitions. Ce suivi de chantier rigoureux garantit la qualité d’exécution, la cohérence esthétique et le respect des délais.
Décoration intérieure et architecture d’intérieur à Hendaye : créer un lieu qui vous ressemble
Ce projet illustre parfaitement ma vision de la décoration intérieure et de l’architecture d’intérieur à Hendaye :
- Assumer des choix forts
- Structurer les volumes par la couleur
- Intégrer les contraintes techniques dans la conception
- Concevoir du mobilier sur mesure
- Valoriser la lumière naturelle
- Coordonner les artisans avec exigence
Au-delà des matériaux et des plans, un projet réussi repose sur la confiance, le dialogue et la précision.
Cet appartement rénové à Hendaye offre aujourd’hui un cadre de vie vibrant, confortable et totalement personnalisé. Chaque pièce affirme son caractère tout en participant à une harmonie globale.
Vous souhaitez rénover votre appartement à Hendaye ? Vous cherchez un accompagnement en décoration intérieure ou en architecture d’intérieur ?
Je vous accompagne de la conception à la livraison pour transformer votre bien en un espace unique, fonctionnel et audacieux.
Avis client : https://share.google/n1DmG7MX8NHSTfVVR
Crédit photo : Komcébo St Jean De Luz














